秦皇岛多个返迁安置项目获批
扫描到手机,新闻随时看
扫一扫,用手机看文章
更加方便分享给朋友
日前,市资源规划局发布多则返迁改造安置项目的批前公示,涉及小李庄片区改造项目、新兴里改造返迁安置项目、海阳一村回迁房(二期)项目、河畔尚城(四合庄改造)项目,详情如下:

项目地址:海港区揽月街与规划路交叉口
楼栋规模:包含10栋住宅楼(17-25层)及配套用房,总建面132376平米。
西侧地块A指标:


东侧地块B指标:


公示时间:
2025年6月30日至2025年7月11日(10个工作日)
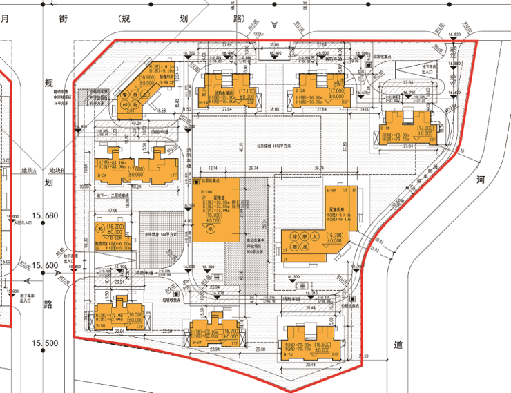
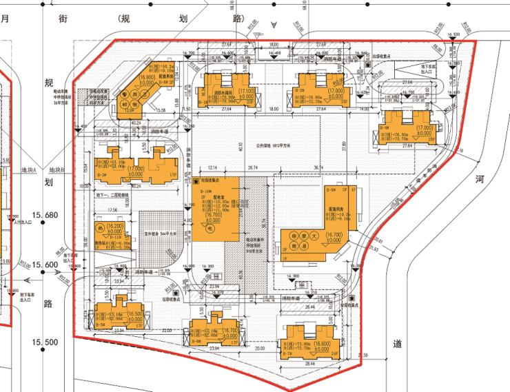
新兴里改造返迁安置项目

项目地址:海港区建设大街与民族路交叉口
楼栋规模:项目包含2栋住宅楼(26层)、1栋配套服务楼、1栋商业。
详细指标及设施如下:

公示时间:
2025年6月20日至2025年7月3日(10个工作日)

项目地址:海港区海安街与规划路交叉口
楼栋规模:包含11栋住宅楼(13-17层)、1栋商业、1栋养老用房和2栋社区服务用房及变电站、车位,总建面132376平米。
详细指标及设施如下:


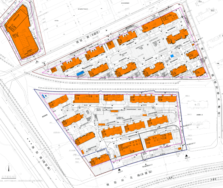
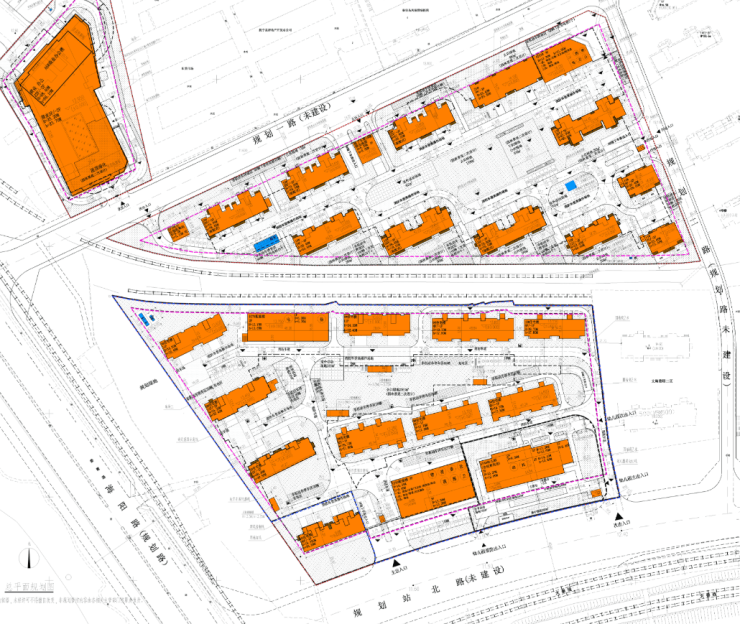
项目地址:海港区秦青路(规划海阳路)与规划站北路交叉口
楼栋规模:三个地块包含21栋住宅楼(13-17层)、3栋配套服务楼、1栋幼儿园、1栋商业及垃圾收集站、车位、绿地等。
详细指标及设施如下:
地块一为西北角22层商业办公楼:


地块二为北侧住宅楼
地块三为南侧2#-10#楼共388户,为返迁安置住宅。




公示时间:
2025年6月13日至2025年6月26日(10个工作日)
公示地点:
项目现场及秦皇岛市海港区政府网站http://www.qhdhgg.gov.cn。
公众意见收集途径:
如对本公示内容有意见或建议,请于公示期内以书面形式向秦皇岛市海港区自然资源和规划局反馈。
通讯地址:秦皇岛市海港区迎宾路9号海港区自然资源和规划局。
邮编:066001
联系电话:0335-3553367
消息来源:海港区人民政府、秦皇岛市海港区自然资源和规划局
声明:本文由入驻焦点开放平台的作者撰写,除焦点官方账号外,观点仅代表作者本人,不代表焦点立场。


