好消息!秦皇岛将建多所学校!周边社区居民有福了
扫描到手机,新闻随时看
扫一扫,用手机看文章
更加方便分享给朋友
项目概况:
海港区杜庄学区排名前列小学分校总建面8436.46平方米,装配率50%以上。主要建设教学楼、学生餐厅、门卫、运动场等。规划新建4轨制24个教学班,可同时容纳1080名学生就读。
据了解,该项目争取今年10月进场,预计2023年11月投入使用。
杜庄学区排名前列小学校长刘金刚:
杜庄学区排名前列小学最初建立的是6轨制36个教学班。目前,学校现有在校生2700人左右,设有50个班级,远远超出了最初建立的轨制,因学生人数较多和教学需求,将多个功能室改造成教室,以保障学生们的正常教学。
近日,北戴河新区政府网站发布了幸福小学、白玉庄学校项目建议书的批复,两所学校的建设将补充片区的教育资源,完善基础配套设施。
两所学校总建面超过30万平方米,规划总计60个班,容纳3000多名学生。
北戴河新区幸福小学,位于北戴河新区中心片区,前程六街北侧、锦绣二路西侧。总建筑面积14890平方米,主要建设教学综合楼、风雨操场、足球场等,学校规划4轨、24个班、1080人。
北戴河新区白玉庄学校,位于北戴河新区南戴河片区,总建筑面积15490平方米,主要建设教学综合楼、风雨操场、足球场等,学校计划6轨、36个班、1620人。
学校所在区域临近机场快速路,周边在售楼盘有戴河龙湾、临海听涛、保利观潮、戴河庭院 等.
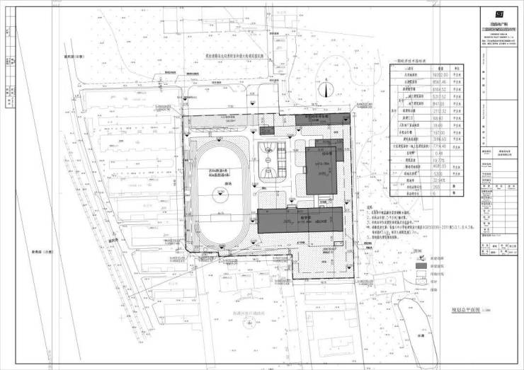
近日,青龙满族自治县政府网站发布秦皇岛市麒石中等职业学校项目(一期)规划设计方案批前公示(肖营子镇王子店村)。
规划图显示,该学校总用地建设面积为77231.13平方米,建设单位为秦皇岛市奇石文化传播有限公司,共分两期建设。
其中,一期建筑面积28325. 29平方米,包括教学楼、宿舍、食堂、消防泵房;二期建筑面积18001. 26平方米,包括宿舍、教师公寓、食堂、门卫。
项目整体容积率0.6,其中一期容积率1.17,二期容积率0.34,规划30个停车位,,绿地率35%。
具体指标如下:
据了解,该学校项目用地为今年3月2日,由秦皇岛奇石文化传播有限公司以总价475万元成功获拍的2022-03、2022-04号教育用地,位于肖营子镇王子店村,土地面积总计为32708㎡。


注:以上文字信息与图片北戴河新区政府、青龙满族自治县政府、爱秦皇岛。
声明:本文由入驻焦点开放平台的作者撰写,除焦点官方账号外,观点仅代表作者本人,不代表焦点立场。


