秦皇岛多个地块规划有调整!
扫描到手机,新闻随时看
扫一扫,用手机看文章
更加方便分享给朋友
近日,秦皇岛市自然资源和规划局发布多则地块规划调整公示,涉及海港区中心区域及北部片区,详情如下:
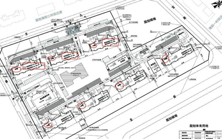
依据《中华人民共和国城乡规划法》及《河北省城乡规划条例》的相关规定,现对皓月·天鉴二区项目规划方案变更公示,征求周边利害关系人意见。
一、变更内容
1、主要技术经济指标变更(详见指标表);
2、1#~7#住宅楼长、宽调整,具体变化详见总平面图;
3、4#住宅楼由地上11层变更为18层,1#、3#住宅楼由地上17层变更为18层;
4、总平面布置调整,地上车位由43个变更为55个;
5、地下车库方案调整,地下车位数量由514个变更为502个;
6、北侧主出入口增加门卫室,燃气调压柜位置调整;
7、总建筑面积减少1506平方米。
二、公示时间
2024年4月25日至2024年5月10日(10个工作日)
三、公示地点
项目现场及秦皇岛市海港区政府网站http://www.qhdhgq.gov.cn
四、公众意见收集途径
如对本公示内容有意见或建议,请于公示期内以书面形式向秦皇岛市海港区自然资源和规划局反馈。
五、通讯地址:秦皇岛市海港区迎宾路9号海港区自然资源和规划局
邮编:066001
联系电话:0335-3553378
为优化海港区东部片区教育设施布局,海港区拟对海港区H-DB-02单元A-10地块调整。现将拟调整方案予以公示,广泛征求社会各界及公众意见,特公告如下:
一、调整内容
将北环路以南、龙港路以西、兴化大街以北的60.18公顷的二类工业用地规划,调整为一块3.6公顷的物流仓储用地、两块教育用地,用地面积分别为9.52公顷、48.9公顷。
注:鉴于新的《国土空间调查、规划、用途管制用地用海分类指南》已实施,本次控规调整地块用地性质按新标准确定,未调整地块维持原来成果表达方式,待片区成果完善时统一变更。
二、公示时间
5个工作日(2024年4月28日至2024年5月7日)
三、公示地点
地块所在地现场、秦皇岛市自然资源和规划局网站
四、公众意见收集途径
1、电子邮箱:ghjzgb1114@126.com
2、反馈电话:0335-3651537
五、通讯地址
秦皇岛市海港区迎宾路89号市自然资源和规划局
邮编:066001
为完善相关设施配套,依据片区功能定位,海港区政府拟对海港区H-XB-06单元TZ-30地块控制性详细规划进行调整,现将调整意向性方案予以公示,广泛征求社会各界及公众意见,特公告如下:
一、调整内容
将河北大街以南、文龙路以西、文生街以北的1.3公顷的文化娱乐用地规划,调整为一块1.04公顷的文化设施用地、一块0.26公顷的加油加气站用地。
注:鉴于新的《城市用地分类与规划建设用地标准》(GB50137-2011)已实施,本次控规调整地块用地性质按新标准确定,未调整地块维持原来成果表达方式,待片区成果完成时统一变更。
二、公示时间
5个工作日(2024年4月26日至2024年5月6日)
三、公示地点
地块所在地现场、秦皇岛市自然资源和规划局网站
四、公众意见收集途径
1、电子邮箱:ghjzgb1114@126.com
2、反馈电话:0335-3651633
五、通讯地址
秦皇岛市海港区迎宾路89号市自然资源和规划局
邮编:066001
消息来源:秦皇岛市自然资源和规划局
声明:本文由入驻焦点开放平台的作者撰写,除焦点官方账号外,观点仅代表作者本人,不代表焦点立场。


